Sports Fans Are Praising Jadwin Gymnasium For Its Incredible Game Atmosphere

Sports in Williamsburg, VA: Premier Events, Venues & Outdoor Adventures Discover top sports venues, exciting athletic events, and outdoor recreation in Williamsburg, Virginia. From youth tournaments and golf championships to scenic running trails and cycling routes, Williamsburg offers the perfect blend of competition and charm. Explore why athletes, coaches, and fans choose Williamsburg for ...

When it comes to sports, some cities just have it all—winning teams, loyal fans, and iconic venues that make every game feel special. From football and baseball to basketball, hockey, and soccer, ...

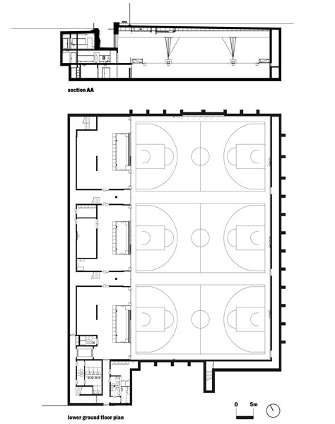
Additionally, the Williamsburg Indoor Sports Complex (WISC) provides a variety of sports, fitness, and recreational activities. Whether you're interested in road races, bike races, or marathons, Williamsburg has something for every sports fan.

COMING SOON The GWSEC is a state-of-the-art facility offering 200,000 square feet of versatile space designed to accommodate a wide range of events—from sports tournaments and showcases to trade shows, corporate outings, and conventions. With over 4,000 square feet of customizable meeting space, the center is equipped to host conferences and breakout sessions tailored to any group’s needs ...

The Williamsburg Indoor Sports Complex makes it easy for families to stay active, healthy, and connected. Enjoy fitness, sports, and childcare—all in one convenient location.

2025 SWVA Sports Pick'em - Week 1 By Ryan4VT in Pick 'em and Fantasy Sports

Go to topic listing All Activity Home General Discussion Pick 'em and Fantasy Sports 2025 SWVA Sports Pick'em - Playoffs Finals pt. 1

Go to topic listing All Activity Home SWVA Sports SWVA Football WEEK 9 Power Ratings (incl. Strength of Sched) ADDED West Va

Sports fans are praising jadwin gymnasium for its incredible game atmosphere 8

FIELDS & FACILITIES Williamsburg is renowned for its exceptional selection of sports complexes, facilities, fields, and golf courses, attracting sporting events of all types and sizes. What’s more, the expert staff at Visit Williamsburg has the experience and knowledge to assist you with every step of the planning process–from the biggest decisions to the smallest details. For more ...

Yahoo! Sports: ‘An incredible atmosphere’: France, Brazil players praise crowd during friendly game in Foxborough

Fans from all over the world traveled to the Boston area for the matchup. Like two brothers, James and Owen, who arrived from France Wednesday night. “We had to come to show support for our country.

Ohio football player charged with hitting... - College and Pro Sports ...

Founded in 1962, Shiel Sexton hasn’t always focused on sports facility construction, but in recent years that portfolio is growing and now includes The Indiana Fever practice facility. (IBJ photo/Chad ...

Chanakya's parenting wisdom highlights the father's role and explains how praising kids can backfire. It emphasizes the importance of raising capable children.Parents strive to shield their kids from ...

Define praising. praising synonyms, praising pronunciation, praising translation, English dictionary definition of praising. n. 1. Expression of approval ...

Learn the English definition and meaning of Praising with examples, pronunciation, and translations to enhance your vocabulary.

What is the etymology of the noun praising? praising is formed within English, by derivation. Etymons: praise v., ‑ing suffix1.

FOR SALE - San Diego, CA - Hampton Bay Ceiling Fans new in box. Selling all three for $75. Please see photos for further description and let me know if you ...

JLA FORUMS | Photo Galleries | Search Results for "Corsair Elite fans pack" in "Photo Description" All times are GMT - 4 Hours

Photo Galleries Search Results for "Corsair Elite fans pack" in "Photo ...

Antique furniture, china, silver Landscaping tools, ladders, Toro, Robi, etc. Painters, electrical and builders DIY supplies Tabletop decor Home decors Youth games, toys Drum Set Mirror Wall art Air purifier Fans Storage racks, cabinet Storage bins IKEA desk w/5-drawer pedestal Books,

Sports fans are praising jadwin gymnasium for its incredible game atmosphere 21

Terrific gift for Mariners or Seahawks fans! Local unfounded rumor, started by me, right now, is that this handsome collection of broken concrete (excellent for a garden path or cement fill) was once part of the Kingdome. That’s right: These highly desirable and collectible relics were once part of a retaining wall built by a guy who owned my house during a decades-long span in which Seattle ...

Sports fans are praising jadwin gymnasium for its incredible game atmosphere 22

Yard Sale We’ll have tables at the Fairvale parking lot sale. Vintage stereo equipment Framed pictures/art CDs & Cassettes Xmas ornaments Backpacks Vintage Suitcases Vintage camera equipment Vintage models brand new in box Oscillating fans And various other collectibles Location: Fair Oaks

Read Winner Takes All. Great novel, poor editing job. What were they thinking? One page had over 5 mistakes. Maybe the BBC should look broader than Doctor Who fans to edit books.

The Mirror US on MSN: Taylor Swift's video clips quietly removed from Spotify profile as fans theorize

Taylor Swift's video clips quietly removed from Spotify profile as fans theorize

As reliably as the sun setting in the west, Kentucky fans react to defeat by assigning blame. That John Calipari was held responsible for the first-round loss to Saint Peter’s did not surprise Dan ...